【売店舗】
倶知安駅から650m 1F:店舗 2F:居宅
建物名:92,000,000円
住所:北海道虻田郡倶知安町北3条西1丁目 1-10,4-3,4-6
販売価格:
物件詳細
種目
戸建て
駐車場
あり
土地面積
294.14㎡(88.97坪)
延床面積
195.66㎡(59.18坪)
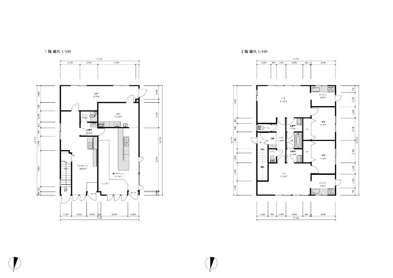
間取り
2LLDDKK
築年数
2000年11月新築
現況
空家
引き渡し日
相談
構造・規模
木造亜鉛メッキ鋼板葺2階建
用途地域
商業地域
学校区
北陽小学校、倶知安中学校
地目
店舗
取引形態
仲介
間取り内訳
1F:テナントスペースx2、厨房、洗面室、トイレ、納戸
2F:LDx2、洋室x2、キッチンx2、洗面室x2、トイレx2、浴室
◤POINT◢
・JR函館本線「倶知安」駅約650m
・メルヘン通り沿い
・商業エリア内の住居付店舗
・民泊可能
・現状渡し
2F:LDx2、洋室x2、キッチンx2、洗面室x2、トイレx2、浴室
◤POINT◢
・JR函館本線「倶知安」駅約650m
・メルヘン通り沿い
・商業エリア内の住居付店舗
・民泊可能
・現状渡し
仲介手数料
3%+6万+税
設備など
上下水道、電気、個別プロパン
備考
契約不適合責任免責
この物件を見ている方におすすめ










